


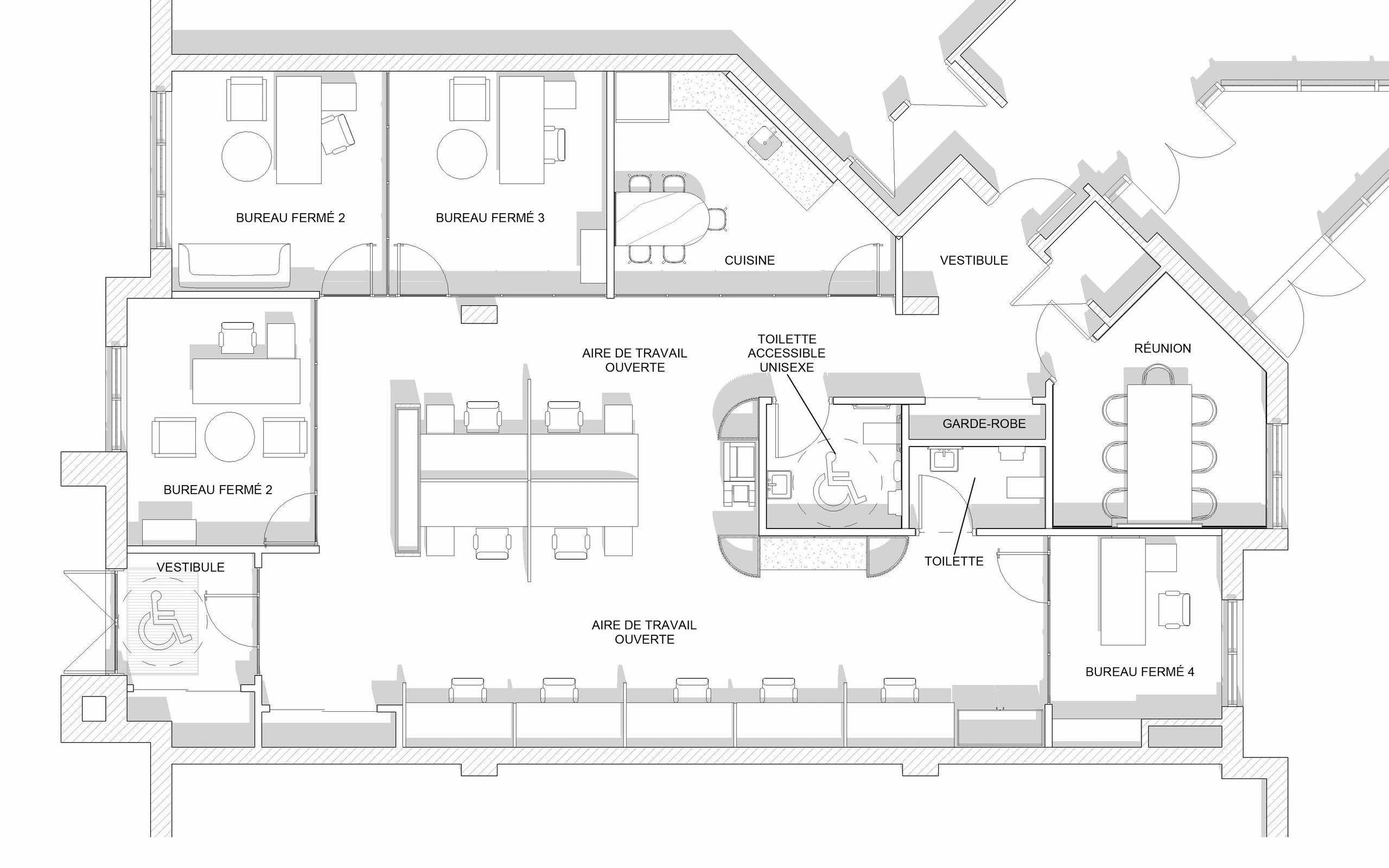
This project consisted of the conversion of an existing commercial retail space into a modern office for a realstate company. The design reorganizes the space into a balanced layout combining an open workspace, enclosed offices, meeting areas, and support spaces such as a kitchen and accessible washrooms. The intervention focused on improving functionality, circulation, and workplace comfort while integrating custom millwork, acoustic treatments, and contemporary finishes to

-6cb28dd.png/:/cr=t:0%25,l:0%25,w:100%25,h:100%25)

Print & Supplies Zone
Copyright © 2026 MÉTABLOC - All Rights Reserved.
We use cookies to analyze website traffic and optimize your website experience. By accepting our use of cookies, your data will be aggregated with all other user data.