
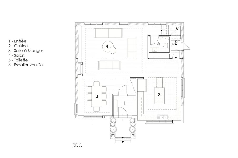
The client wished to add an additional floor as well as a front extension, transforming the house into a three-story residence with a basement. The project aimed to bring in extra space and a renewed sense of harmony and modernity.

BEFORE
A single-family home from the 1960s whose interior layout no longer met the needs of its occupants.
-358766a.png/:/cr=t:9.68%25,l:9.68%25,w:80.65%25,h:80.65%25)
View down the street.
.png/:/cr=t:0%25,l:0%25,w:100%25,h:100%25)
Facing street walk view.

Special attention was given to the design of the entrance: we reimagined it to highlight its presence, naturally guide access to the home, and reinforce the symmetry and balance of the façade.

In this new layout, all sleeping areas were relocated to the second floor, including a master bedroom with a walk-in closet and an en-suite bathroom.
Copyright © 2026 MÉTABLOC - All Rights Reserved.
We use cookies to analyze website traffic and optimize your website experience. By accepting our use of cookies, your data will be aggregated with all other user data.