
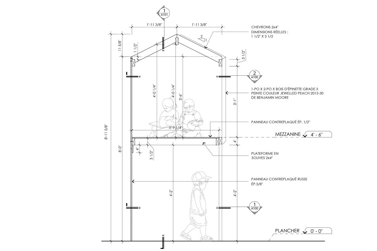
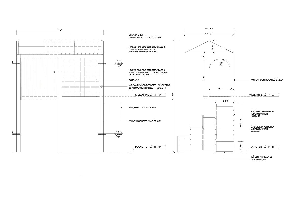
In collaboration with a kindergarten in Boisbriand, we designed a playful indoor reading cabin to serve as a dedicated corner for storytelling and imagination.

Built with environmentally friendly and accessible materials, the structure balances durability with a child-friendly design.

The cabin not only provides a cozy refuge for reading but also enriches the playroom with a sense of wonder and creativity, encouraging young learners to connect with books in an engaging, inspiring way.


Copyright © 2026 MÉTABLOC - All Rights Reserved.
We use cookies to analyze website traffic and optimize your website experience. By accepting our use of cookies, your data will be aggregated with all other user data.